1923 – budowa eksperymentalnego domu Haus am Horn w Weimarze
1925 – przeniesienie Bauhausu do Dessau
1925‑1926 – budowa nowej siedziby Bauhausu według projektu Waltera Gropiusa
1932 – przeniesienie szkoły do Berlina
1933 – zamknięcie Bauhausu przez nazistów
1937 – założenie New Bauhaus w USA
1945 – częściowe zniszczenie budynków Bauhausu w Dessau
1976 – rekonstrukcja budynków Bauhausu
1
Scenariusz lekcji dla nauczyciela.
R1UhVp5qYAdzU1
Scenariusz lekcji do pobrania.
Scenariusz lekcji do pobrania.
Źródło: online skills, cc0.
II. Zapoznawanie z najwybitniejszymi dziełami w zakresie architektury i sztuk plastycznych. Uczeń:
10. określa funkcję dzieła i wskazuje jej wpływ na kształt dzieła;
13. dokonuje opisu i analizy, w tym porównawczej, dzieł z uwzględnieniem ich cech formalnych:
a) w architekturze: planu, układu przestrzennego, opisu fasady i elewacji, wnętrza,
3. umiejscawia dzieła w czasie (wskazuje stulecie powstania dzieł sztuki dawnej, a w przypadku dzieł sztuki nowoczesnej i współczesnej datuje je z dokładnością do połowy wieku), w nielicznych przypadkach, dotyczących sztuki nowoczesnej i współczesnej, zna daty powstania dzieł lub datuje je z dokładnością jednej dekady;
4. zna plany i układy przestrzenne najbardziej znanych dzieł architektury oraz dzieł charakterystycznych dla danego stylu i kręgu kulturowego;
9. identyfikuje najbardziej reprezentatywne i najsłynniejsze dzieła na podstawie charakterystycznych środków warsztatowych i formalnych oraz przyporządkowuje je właściwym autorom;
III. Zapoznawanie z dorobkiem najwybitniejszych twórców dzieł architektury i sztuk plastycznych. Uczeń:
1. wymienia najistotniejszych twórców dla danego stylu lub kierunku w sztuce;
4. łączy wybrane dzieła z ich autorami na podstawie charakterystycznych środków formalnych;
IV. Kształcenie w zakresie rozumienia i stosowania terminów i pojęć związanych z dziełami sztuki, ich strukturą i formą, tematyką oraz techniką wykonania. Uczeń:
1. definiuje terminy związane z opisem formy i struktury dzieła architektonicznego, w tym określenia dotyczące typów i elementów planów budowli, elementów konstrukcyjnych i dekoracyjnych (dekoracji fasady i wnętrza) oraz układu przestrzennego;
5. analizując i opisując dzieła architektoniczne, właściwie stosuje terminy i pojęcia dotyczące struktury architektury.
Nauczysz się
stosować terminologię z zakresu architektury,
wskazywać funkcję elementów składowych budynku;
opisywać przykłady dzieł twórców epoki Bauhausu;
rozpoznawać najważniejsze budowle zaprojektowane przez przedstawicieli Bauhausu.
Utworzenie szkoły Bauhausu
Architektura Bauhausu (niem. budowanie domu) związana jest z industrializacją, dynamicznym, urbanistycznym rozwojem miast i migracją ludności ze wsi do pracy w mieście. Czynniki te wpłynęły na konieczność rozwoju infrastruktury (wodociągów, sieci gazowej i elektrycznej) oraz zapewnienie taniego budownictwa mieszkalnego – funkcjonalnego i zaspokającego potrzeby lokatorów. Poszukiwano czystej, funkcjonalnej formy, a ornamentykę uznano za zbędną. Mieszkanie miało stać się „maszyną do mieszkania”, krzesło – urządzeniem do siedzenia.
R1Zwb4PKmET3y
Ilustracja o kształcie kwadratu przedstawia Znak graficzny Bauhausu zaprojektowany przez Oskara Schlemmera. Na czarnym tle umieszczony jest zarys twarzy z profilu złożony z białych kształtów geometrycznych w białym okręgu oraz prostych linii. Znak nawiązuje do prostoty, na której opierali się twórcy kierunku.
Oskar Schlemmer, Znak graficzny Bauhausu, wikimedia.org, CC BY 3.0
Chcemy tworzyć jasną, organiczną architekturę, której logika wewnętrzna będzie oczywista i promienna, nieobciążona kłamliwymi fasadami i sztuczkami; chcemy przystosowanej do naszego świata maszyn, radia, szybkich aut – architektury o przejrzystym i funkcjonalnym stosunku form.
Źródło: Jan Białostocki, Sztuka XX wieku, PWN, Warszawa 1971, s. 37.
Fabryka Fagus – stal, szkło
Podczas wystawy Werkbundu w Kolonii w 1914 roku, architekt – Walter Gropius i jego współpracownik – Adolf Meyer zaprezentowali wzorcową fabrykę i jej budynek administracyjny. Już wcześniej, bo od 1910, pracowali przy przebudowie fabryki obuwia Fagus w Alfeld. Obydwa obiekty posiadały już elementy modernizmu – ich konstrukcja oparta została na stalowych filarachFilarfilarach podtrzymujących stropyStropstropy, co umożliwiło uwolnienie elewacjiElewacjaelewacji i przeszklenie dużych jej płaszczyzn.
RMfH87vV3Ze0F1
Ilustracja interaktywna o kształcie poziomego prostokąta przedstawia wykonana w sepii fotografię fabryki Fagus, zaprojektowanej przez Waltera Gropiusa i Adolfa Meyera. Zdjęcie ukazuje budynek stojący na placu. Posiada przeszklone ściany poprzedzielane przęsłami. Na górze znajduje się napis z nazwa fabryki. Po prawej stronie w dali widoczne s a inne zabudowania należące do architektury przemysłowej. Na pierwszym planie widać dwie idące osoby. Dodatkowo na ilustracji zostały zamieszczone informacje: 1. W fasadzie wykorzystano szkło i stal. 2. Budynek jest całkowicie oszklony. 3. Konstrukcja pozbawiona została filarów w narożnikach i wsporników, które zostały całkowicie oszklone, co dodało budynkowi elegancji. 4. Budynek posiada prosta, geometryczną formę.
Ilustracja interaktywna o kształcie poziomego prostokąta przedstawia wykonana w sepii fotografię fabryki Fagus, zaprojektowanej przez Waltera Gropiusa i Adolfa Meyera. Zdjęcie ukazuje budynek stojący na placu. Posiada przeszklone ściany poprzedzielane przęsłami. Na górze znajduje się napis z nazwa fabryki. Po prawej stronie w dali widoczne s a inne zabudowania należące do architektury przemysłowej. Na pierwszym planie widać dwie idące osoby. Dodatkowo na ilustracji zostały zamieszczone informacje: 1. W fasadzie wykorzystano szkło i stal. 2. Budynek jest całkowicie oszklony. 3. Konstrukcja pozbawiona została filarów w narożnikach i wsporników, które zostały całkowicie oszklone, co dodało budynkowi elegancji. 4. Budynek posiada prosta, geometryczną formę.
Walter Gropius, Adolf Meyer, Fabryka Fagus, Alfeld, 1911-1912, Niemcy, wikimedia.org, CC BY-SA 3.0
Po powrocie z I wojny światowej Walter Gropius został mianowany i zaproszony do Weimaru przez wielkiego księcia Saksonii‑Weimar‑Eisenach, Wilhelma Ernesta II. Tam założył szkołę rzemiosła, sztuki użytkowej i architektury. Jej celem było zespolenie rzemiosła i przemysłu, zdefiniowanie nowych poglądów na sztukę i podkreślenie jej roli w społeczeństwie poprzez utworzenie nowych dyscyplin, które sprostałyby nowej rzeczywistości.
R4lwcWyfswrT91
Ilustracja o kształcie poziomego prostokąta przedstawia fotografię pierwszej siedziby Bauhausu, zaprojektowanej przez Henryego van de Velde’a. Na zdjęciu widać podłużny budynek z dużymi oknami i dachem z czerwonej dachówki. Podziały okien są rytmiczne. Pośrodku znajduje się wejście do budynku. Obiekt ma elewacje otynkowane i pomalowane na żółty kolor. Na zdjęciu, przed wejściem ustawione są rowery i przechadzają się ludzie.
Henry van de Velde, Pierwsza siedziba Bauhausu, Weimar, Niemcy, bauhaus100.de, CC BY 3.0
Wystawowy Haus am Horn
W 1923 miasto zmusiło szkołę do zaprezentowania praktycznych efektów nowego programu nauczania. Najważniejszym elementem wystawy był eksperymentalny dom Haus Am Horn, zaprojektowany przez Georga Muchę i Adolfa Meyera, całkowicie umeblowany sprzętami powstałymi w warsztatach Bauhausu. Kolonia takich budynków miała stanąć na terenie szkoły w Weimarze. Jednak pomimo entuzjastycznych recenzji wystawy w całej Europie, rząd Turyngii zrezygnował z projektów Bauhausu zarzucając jej członkom działania bolszewickie. Wywołało to falę krytyki postępowych architektów i dziennikarzy, zaś uczniowie i mistrzowie szkoły stanęli solidarnie w obronie jej ideałów.
RyDKJEIZpTMwz1
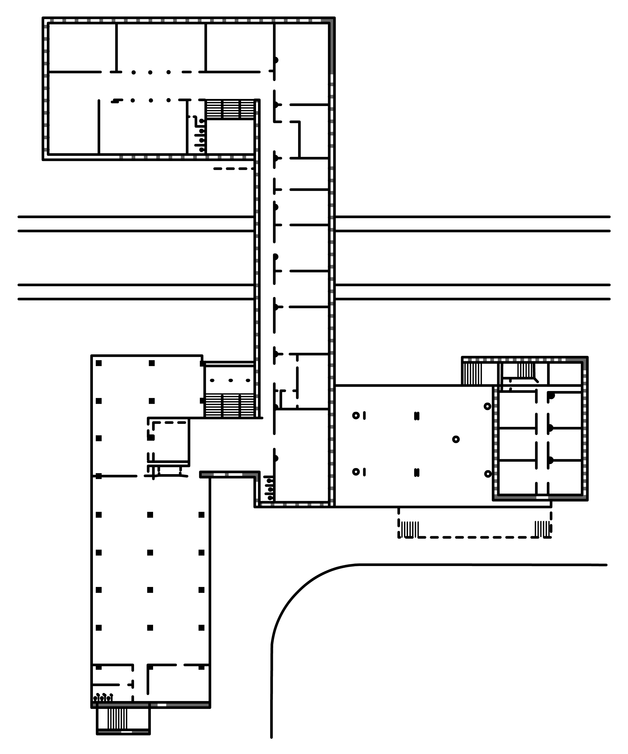
Ilustracja o kształcie poziomego prostokąta przedstawia dokumentację architektoniczną: plan i przekrój bryły „Haus am Horn”. Na zdjęciu widać schematy parteru oraz pietra. Kolejne ilustracje pokazują: plan, przekrój rysunek bryły. Dodatkowo jako ostatni rysunek zamieszczono rzut z góry na usytuowanie budynku w terenie.
Dokumentacja architektoniczna: plan i bryła „Haus am Horn”, 1923, Weimar, Niemcy, adsttc.com, CC BY 3.0
RY1jbIBui9ZHL1
Ilustracja interaktywna o kształcie poziomego prostokąta przedstawia fotografię Haus am Horn, wzorcowego domu, przygotowanego przez mistrzów i uczniów Bauhausu na wystawę w 1923 roku w Weimarze w Niemczech.
Zdjęcie ukazuje biały, dwukondygnacyjny budynek oparty na prostej bryle geometrycznej. Druga kondygnacja jest mniejsza od pierwszej. W układzie okien widoczny jest prosty, schematyczny układ - okna są ułożone na jednym poziomie. Wejście usytuowane jest z boku. Przed budynkiem znajduje się niewielka skarpa porośnięta trawą i innymi roślinami. Dodatkowo na ilustracji zostały zamieszczone informacje: 1. Obiekt jest prostą konstrukcją sześcienną z płaskim dachem ze stali i betonu w swojej konstrukcji. 2. Ściany są wykonane z dwóch płyt z kamienia, z wewnętrzną przestrzenią wypełnioną torfem jako izolacją.
Ilustracja interaktywna o kształcie poziomego prostokąta przedstawia fotografię Haus am Horn, wzorcowego domu, przygotowanego przez mistrzów i uczniów Bauhausu na wystawę w 1923 roku w Weimarze w Niemczech.
Zdjęcie ukazuje biały, dwukondygnacyjny budynek oparty na prostej bryle geometrycznej. Druga kondygnacja jest mniejsza od pierwszej. W układzie okien widoczny jest prosty, schematyczny układ - okna są ułożone na jednym poziomie. Wejście usytuowane jest z boku. Przed budynkiem znajduje się niewielka skarpa porośnięta trawą i innymi roślinami. Dodatkowo na ilustracji zostały zamieszczone informacje: 1. Obiekt jest prostą konstrukcją sześcienną z płaskim dachem ze stali i betonu w swojej konstrukcji. 2. Ściany są wykonane z dwóch płyt z kamienia, z wewnętrzną przestrzenią wypełnioną torfem jako izolacją.
Haus am Horn, dom wzorcowy przygotowany przez mistrzów i uczniów Bauhausu na wystawę w 1923 roku, Weimar, Niemcy, wikimedia.org, CC BY-SA 2.0
RA1smfEmfTa9l1
Ilustracja interaktywna o kształcie pionowego prostokąta przedstawia fotografię wnętrza Haus am Horn, domu wzorcowego przygotowanego przez mistrzów i uczniów Bauhausu na wystawę w 1923 roku w Weimarze w Niemczech. W pomieszczeniu z dwoma oknami znajdują się meble: drewniane krzesło i biurko, a nad kaloryferem na wysięgniku zamontowane zostało okrągłe lustro. Dodatkowo na ilustracji zostały zamieszczone informacje: 1. W środku domu znajdował się oświetlony światłem dziennym salon dwudziestu stóp, z wyspecjalizowanymi pokojami otaczającymi go ze wszystkich czterech stron. 2. Każdy pokój miał specjalnie zaprojektowane meble i sprzęt stworzony w warsztatach Bauhausu.
Ilustracja interaktywna o kształcie pionowego prostokąta przedstawia fotografię wnętrza Haus am Horn, domu wzorcowego przygotowanego przez mistrzów i uczniów Bauhausu na wystawę w 1923 roku w Weimarze w Niemczech. W pomieszczeniu z dwoma oknami znajdują się meble: drewniane krzesło i biurko, a nad kaloryferem na wysięgniku zamontowane zostało okrągłe lustro. Dodatkowo na ilustracji zostały zamieszczone informacje: 1. W środku domu znajdował się oświetlony światłem dziennym salon dwudziestu stóp, z wyspecjalizowanymi pokojami otaczającymi go ze wszystkich czterech stron. 2. Każdy pokój miał specjalnie zaprojektowane meble i sprzęt stworzony w warsztatach Bauhausu.
Haus am Horn, wnętrze domu wzorcowego przygotowanego przez mistrzów i uczniów Bauhausu na wystawę w 1923 roku, Weimar, Niemcy, tumblr.com, CC BY 3.0
Bauhaus w Dessau
W 1925 roku szkoła przeniosła się do Dessau i tu też powstało kolejne ważne osiągnięcie architektoniczne, będące owocem współpracy mistrzów i uczniów. Budynek Bauhausu według projektów Gropiusa powstał w latach 1925‑1926 na zlecenie rady miejskiej w Dessau. Realizacja, która miała stanowić przykład postulowanego przez Gropiusa GesamtkunstwerkGesamtkunstwerkGesamtkunstwerk, obejmowałaby w jedną całość architekturę i wszystko, co stanowi o jej wnętrzu, tj. rzeźbę, malarstwo, design, tkaniny.
Zgodnie z założeniem programowym projekt budynku łączył funkcjonalność z estetyką. Jego kubiczne części różniły się od siebie pod względem funkcji, wielkości, rozwiązania fasad, układu przestrzennego, powierzchni ścian, kolorystyki i oświetlenia. Budynek jako całość składał się z kilku oddzielnych brył: trzykondygnacyjnego skrzydła mieszczącego warsztaty (tzw. „laboratorium pomysłów” ze słynną szklaną ścianą fasadową), trzykondygnacyjnego skrzydła północnego, w którym znajdowała się miejska szkoła zawodowa, pięciokondygnacyjnego budynku pracowni gdzie mieszkali studenci i młodsi nauczyciele, jednokondygnacyjnej sali widowiskowej oraz postawionego na słupach dwukondygnacyjnego łącznika (tzw. „mostu”). Szklane fasady – a zwłaszcza szklana fasada frontowa – stanowią cechę charakterystyczną stylistyki Bauhausu. Poza szklanymi elewacjami w całym budynku zastosowano tą samą strukturę konstrukcyjną, w której żelbetową konstrukcję szkieletową wypełniały ściany z cegły. Wystrój i detale wykończenia (kolorystyka, oświetlenie i umeblowanie) zostały opracowane w warsztatach Bauhausu.
Źródło: Monika Markgraf, Ochrona i konserwacja budynków Bauhausu w Dessau: http://docplayer.pl/25130568‑Ochrona‑i-konserwacja‑budynkow‑bauhausu‑w-dessau.html (dostęp z dnia 31.03.2018)
R1T04c3YFXIXo1
Ilustracja interaktywna o kształcie poziomego prostokąta przedstawia fotografię głównego budynku Bauhausu w Dessau w Niemczech, zaprojektowanego przez Waltera Gropiusa. Elewacja jest biało-szara. Z boku znajduje się duży, biały napis BAUHAUS, ułożony w pionie. Od frontu budynek jest przeszkolony. Górne dwie kondygnacje są lekko wysunięte. Przed budynkiem znajduje się trawnik i chodnik. Dodatkowo na ilustracji zostały zamieszczone informacje: 1. Ściana kurtynowa, osłaniająca budynek warsztatów wykonana została ze szkła. 2. Budynek posiada prostą bryłę opartą na geometrycznych układach gładkich płaszczyzn tynkowanego muru. 3. Z tynkowaną ścianą kontrastują przeszklenia. 4. W konstrukcji zastosowano rozwiązanie żelbetowe o układzie płytowo-słupowym.
Ilustracja interaktywna o kształcie poziomego prostokąta przedstawia fotografię głównego budynku Bauhausu w Dessau w Niemczech, zaprojektowanego przez Waltera Gropiusa. Elewacja jest biało-szara. Z boku znajduje się duży, biały napis BAUHAUS, ułożony w pionie. Od frontu budynek jest przeszkolony. Górne dwie kondygnacje są lekko wysunięte. Przed budynkiem znajduje się trawnik i chodnik. Dodatkowo na ilustracji zostały zamieszczone informacje: 1. Ściana kurtynowa, osłaniająca budynek warsztatów wykonana została ze szkła. 2. Budynek posiada prostą bryłę opartą na geometrycznych układach gładkich płaszczyzn tynkowanego muru. 3. Z tynkowaną ścianą kontrastują przeszklenia. 4. W konstrukcji zastosowano rozwiązanie żelbetowe o układzie płytowo-słupowym.
Walter Gropius, Główny budynek Bauhausu, 1925-1926, Dessau, Niemcy, wikimedia.org, domena publiczna
Innym ważnym projektem architektonicznym opracowanym w ramach szkoły były projekty mobilnych domów stalowych. Autorami prototypu byli mistrz Bauhausu, Georg Muche oraz Richard Paulick. Dom stał na betonowej platformie, metalowe ściany zamontowano na stalowej konstrukcji szkieletowej. Wewnątrz znajdowało się mieszkanie o powierzchni 90 m kwadratowych.
R1YtQxNbJKWR71
Ilustracja interaktywna o kształcie poziomego prostokąta przedstawia fotografię Stalowego Domu w Dessau. Dom został zbudowany ze stalowych płyt. Oparty został na zastosowaniu prostych brył geometrycznych o różnej wysokości. Wejście do budynku stanowią dwie pary czarnych drzwi. W elewacji znajdują się trzy rzędy okien po lewej i dwa po prawej. Okna te mają pionowy układ – trzy jedno pod drugim. Dodatkowo przy narożu znajduje się okrągłe okno. Budynek otacza zieleń i drzewa. Dodatkowo na ilustracji zostały zamieszczone informacje: 1. Budynek posiada prostą formę geometryczną. 2. Składa się ze stalowej konstrukcji nośnej szkieletu. 3. Na zewnątrz zamontowane zostały panele ze stali o grubości 3 mm.
Ilustracja interaktywna o kształcie poziomego prostokąta przedstawia fotografię Stalowego Domu w Dessau. Dom został zbudowany ze stalowych płyt. Oparty został na zastosowaniu prostych brył geometrycznych o różnej wysokości. Wejście do budynku stanowią dwie pary czarnych drzwi. W elewacji znajdują się trzy rzędy okien po lewej i dwa po prawej. Okna te mają pionowy układ – trzy jedno pod drugim. Dodatkowo przy narożu znajduje się okrągłe okno. Budynek otacza zieleń i drzewa. Dodatkowo na ilustracji zostały zamieszczone informacje: 1. Budynek posiada prostą formę geometryczną. 2. Składa się ze stalowej konstrukcji nośnej szkieletu. 3. Na zewnątrz zamontowane zostały panele ze stali o grubości 3 mm.
Georg Muche i Richard Paulick, Stalowy Dom, Dessau-Rosslau, 1926-27, Niemcy, wikimedia.org, domena publiczna
Projekty osiedli według założeń Bauhausu
Walter Gropius wywarł wielki wpływ na architekturę publiczną, preferując proste, kubiczne bryły wznoszone m.in. z prefabrykatówPrefabrykatprefabrykatów. Po realizacji kompleksu budynków dla Bauhausu w Dessau Gropius poświęcił się studiowaniu zagadnień budownictwa masowego i standaryzacji. W 1927 roku zatrudnił na stanowisku kierownika działu architektury Hannesa Meyera, który na kursach uczył studentów głównie analizy problemów praktycznych, związanych z kształtowaniem środowiska człowieka. Za jego kierownictwa dział architektoniczny Bauhausu zajmował się rozbudową osiedla Törten, zaprojektowanego jeszcze przez Gropiusa na przedmieściach Dessau. Studenci współpracowali również przy projekcie szkoły związków zawodowych w Bernau pod Berlinem. W tym czasie Walter Gropius projektował wzorcowe osiedle mieszkaniowe Dammerstock w Karlsruhe (1929). By mieszkania cały dzień były nasłonecznione, architekt zaplanował układ równoległych ulic. Osiedle składa się z ustawionych szeregowo kilku typów budynków – od dwupiętrowych domków szeregowych do pięciopiętrowego wielorodzinnego bloku. Coraz więcej wzorów Bauhausu przechodziło do produkcji masowej.
RWsED4r2VHr2S1
Ilustracja o kształcie poziomego prostokąta przedstawia fotografię z widokiem na Dessau-Törten, osiedle zaprojektowane przez Waltera Gropiusa. Czarno białe zdjęcie ukazuje ulicę, po której obu stronach znajdują się jednakowe budynki o prostej bryle geometrycznej. W fasadach budynków zamieszczone są okna o rytmicznym układzie.
Dessau-Törten, osiedle zFOTOrojektowane przez Waltera Gropiusa, 1926–1928, Niemcy, wikiarquitectura.com, CC BY 3.0
RdyfcpRuly2IS1
Ilustracja o kształcie poziomego prostokąta przedstawia fotografię wzorcowego osiedla Dammerstock w Karlsruhe, zaprojektowanego przez Waltera Gropiusa. Czarno białe zdjęcie ukazuje układ ulic oraz rzędy długich, horyzontalnie rozmieszczonych bloków, ustawionych jeden za drugim.
Walter Gropius, wzorcowe osiedle Dammerstock, Karlsruhe, 1928-29, Niemcy, wikiarquitectura.com, CC BY 3.0
Zadania
Rk9Yqo1hKwh3B
Ćwiczenie 1
Odpowiedz na pytanie. Kto jest autorem Pierwszej siedziby Bauhausa?
Odpowiedz na pytanie. Kto jest autorem Pierwszej siedziby Bauhausa?
Uzupełnij dane pod ilustracjami.
Siedziba Bauhausu, Henry van de Velde, Walter Gropius
Autor pierwszego budynku: ....................................
Autor drugiego budynku: ....................................
Funkcja budynku: ....................................
RztkuEobsSrAd
Ćwiczenie 2
Odpowiedz, w jakich miastach znajdują się budowle: budynek Bauhausu, fabryka Fagus.
Odpowiedz, w jakich miastach znajdują się budowle: budynek Bauhausu, fabryka Fagus.
Do budynków dopisz miasta, w których się znajdują
.................
.................
.................
RQ7OkfWSVuPGs
Ćwiczenie 3
Co wiesz na temat domu dom Haus Am Horn?
Co wiesz na temat domu dom Haus Am Horn?
Ułóż obiekty chronologicznie.
RegyCmW2n3epA
Ćwiczenie 4
Podaj miasto, w którym znajduje się osiedle Dammerstock.
Podaj miasto, w którym znajduje się osiedle Dammerstock.
Rozpoznaj, gdzie znajduje się osiedle i wskaz autora projektu.
Miasto: ..................
Nazwisko autora projektu: ..............
R15BaAHHh8Heq
Ćwiczenie 5
Wymień trzy nazwiska przedstawicieli szkoły Bauhausu.
Wymień trzy nazwiska przedstawicieli szkoły Bauhausu.
Przyporządkuj nazwiska i imiona artystów dziedzinom, których uczyli w Bauhausie.
Plan Fabryki Fagus
Plan Stalowego Domu
Plan założenia Bauhausu
RqcX35aeSJNZu1
Ćwiczenie 6
Podaj autorów fabryki Fagus.
Podaj autorów fabryki Fagus.
Budynkom przyporządkuj ich architektów.
Walter Gropius, Henry van de Velde, Walter Gropius, Adolf Meyer, Georg Muche i Richard Paulick
Stalowy Dom
Pierwsza siedziba Bauhausu
Główny budynek Bauhausu
Fabryka Fagus
Źródło: online skills, cc0.
RrfzXHy4BCPRi1
Ćwiczenie 7
Wyjaśnij termin Bauhaus.
Wyjaśnij termin Bauhaus.
Do definicji dopisz hasło.
.............................. – idea i praktyka syntezy sztuk, rozumianej jako ich wspólnota mimo rozmaitości tworzywa.
Źródło: online-skills, licencja: CC0.
Polecenie 1
Na dowolnie wybranych trzech przykładach architektury Bauhausu wskaż nowatorstwo szkoły w stosowaniu rozwiązań architektonicznych i stosowanych materiałów.
R1UaLRLRoZ9N7
Na dowolnie wybranych trzech przykładach architektury Bauhausu wskaż nowatorstwo szkoły w stosowaniu rozwiązań architektonicznych i stosowanych materiałów.
Na dowolnie wybranych trzech przykładach architektury Bauhausu wskaż nowatorstwo szkoły w stosowaniu rozwiązań architektonicznych i stosowanych materiałów.
m2eca5e14e5c219e6_0000000000206
Słownik pojęć
Elewacja
Elewacja
lico budynku, także jedna z jego zewnętrznych ścian wraz ze wszystkimi występującymi na niej elementami architektonicznymi i dekoracyjnymi; elewację określa się wg stron świata lub otoczenia (np. elewacja ogrodowa); elewacja z głównym wejściem nosi nazwę fasady.
Filar
Filar
w architekturze pionowa podpora, najczęściej wolno stojąca, o funkcji podobnej jak kolumna (może mieć również bazę, głowicę, nasadnik), o przekroju wielobocznym (najczęściej czworobocznym, czasem ośmiobocznym), z kamienia, cegły, betonu itp.
Gesamtkunstwerk
Gesamtkunstwerk
idea i praktyka syntezy sztuk, rozumianej jako ich wspólnota mimo rozmaitości tworzywa.
Prefabrykat
Prefabrykat
gotowy fabryczny element budowlany łączony w całość z innymi elementami na miejscu budowy.
Strop
Strop
poziomy element konstrukcyjny oddzielający kondygnacje budynku.
Słownik pojęć został opracowany na podstawie:
Słownik terminologiczny sztuk pięknych, opr. zbiorowe pod red. Krystyny Kubalskiej‑Sulkiewicz, Wyd. Naukowe PWN, Warszawa 2003
https://encyklopedia.pwn.pl
m2eca5e14e5c219e6_0000000000225
Galeria dzieł sztuki
RQiGZjMiNjmzc1
Ilustracja przedstawia czarno białą fotografię Waltera Gropius i Adolfa Meyer „Fabryka Fagus”. Na pierwszym planie widać dwie idące osoby, w tle znajduje się budynek fabryki z przeszklonymi ścianami. Po prawej stronie znajduje się wysoki komin i inne budynki.
Walter Gropius, Adolf Meyer, Fabryka Fagus, Alfeld, 1911-1912, Niemcy, wikimedia.org, CC BY-SA 3.0
R4lwcWyfswrT91
Ilustracja o kształcie poziomego prostokąta przedstawia fotografię pierwszej siedziby Bauhausu, zaprojektowanej przez Henryego van de Velde’a. Na zdjęciu widać podłużny budynek z dużymi oknami i dachem z czerwonej dachówki. Podziały okien są rytmiczne. Pośrodku znajduje się wejście do budynku. Obiekt ma elewacje otynkowane i pomalowane na żółty kolor. Na zdjęciu, przed wejściem ustawione są rowery i przechadzają się ludzie.
Henry van de Velde, Pierwsza siedziba Bauhausu, Weimar, Niemcy, bauhaus100.de, CC BY 3.0
RrNOhW7InOZCB1
Ilustracja interaktywna przedstawia Haus am Horn, dom wzorcowy przygotowany przez mistrzów i uczniów Bauhausu na wystawę w 1923 roku w Weimar w Niemczech. Biały budynek z kilkoma oknami ma kształt bryły prostopadłościanu. Przed budynkiem znajduje się niewielka zielona skarpa i schody. Po kliknięciu kursorem myszki w punkt wyświetlą się dodatkowe informacje.
Haus am Horn, dom wzorcowy przygotowany przez mistrzów i uczniów Bauhausu na wystawę w 1923 roku, Weimar, Niemcy, wikimedia.org, CC BY-SA 2.0
RQFTCSbWoCGfI1
Ilustracja interaktywna przedstawia wnętrze Haus am Horn, domu wzorcowego przygotowanego przez mistrzów i uczniów Bauhausu na wystawę w 1923 roku w Weimar w Niemczech. Na pierwszym planie fotografii widać drewnia ne krzesło przed którym stoi mebel przypominający biórko i lusterko na metalowym stelażu. Po kliknięciu kursorem myszki w punkt wyświetlą się dodatkowe informacje.
Haus am Horn, wnętrze domu wzorcowego przygotowanego przez mistrzów i uczniów Bauhausu na wystawę w 1923 roku, Weimar, Niemcy, tumblr.com, CC BY 3.0
R3dH5IDHQWWes1
Ilustracja interaktywna przedstawia Walter Gropius, Główny budynek Bauhausu w Dessau w Niemczech. Biało szary budynek w kształcie prostopadłościanu widoczny od szczytowej ściany. Przed budynkiem znajduje się trawnik i chodnik. Po kliknięciu kursorem myszki w punkt wyświetlą się dodatkowe informacje.
Walter Gropius, Główny budynek Bauhausu, 1925-1926, Dessau, Niemcy, wikimedia.org, domena publiczna
Rte3Cgpktkgwj1
Georg Muche i Richard Paulick, Stalowy Dom
Georg Muche i Richard Paulick, Stalowy Dom, Dessau-Rosslau, 1926-27, Niemcy, wikimedia.org, domena publiczna
RWsED4r2VHr2S1
Ilustracja o kształcie poziomego prostokąta przedstawia fotografię z widokiem na Dessau-Törten, osiedle zaprojektowane przez Waltera Gropiusa. Czarno białe zdjęcie ukazuje ulicę, po której obu stronach znajdują się jednakowe budynki o prostej bryle geometrycznej. W fasadach budynków zamieszczone są okna o rytmicznym układzie.
Dessau-Törten, osiedle zFOTOrojektowane przez Waltera Gropiusa, 1926–1928, Niemcy, wikiarquitectura.com, CC BY 3.0
RdyfcpRuly2IS1
Ilustracja o kształcie poziomego prostokąta przedstawia fotografię wzorcowego osiedla Dammerstock w Karlsruhe, zaprojektowanego przez Waltera Gropiusa. Czarno białe zdjęcie ukazuje układ ulic oraz rzędy długich, horyzontalnie rozmieszczonych bloków, ustawionych jeden za drugim.
Walter Gropius, wzorcowe osiedle Dammerstock, Karlsruhe, 1928-29, Niemcy, wikiarquitectura.com, CC BY 3.0
m2eca5e14e5c219e6_0000000000229
Bibliografia
Białostocki J., Sztuka XX wieku, PWN, Warszawa 1971
Ilustrowany leksykon architektoniczno‑budowlany, pod red. Wojciecha Skowrońskiego, Arkady, Warszwa 2008
Sudic D., B jak Bauhaus : a jak autentyk, b jak bauhaus, c jak cztery kółka: alfabet współczesności, Karakter, Kraków 2014