Charakterystyka przyrządów pomiarowych do pomiaru ropy naftowej w zbiorniku magazynowym
1
Sonda ultradźwiękowa
Są to urządzenia do ciągłego, bezkontaktowego pomiaru poziomu cieczy. Mają możliwość komunikacji cyfrowej i mogą być obsługiwane zdalnie przy pomocy komputera z odpowiednim programem. Pomiar polega na określeniu czasu pomiędzy wysłaniem sygnału ultradźwiękowego a odebraniem echa. Metoda ta umożliwia pomiar poziomu w zbiornikach bez bezpośredniego kontaktu czujnika pomiarowego z mierzonym medium.
RQ4iBGuGcd9Wf
Pomiar poziomu sondą ultradźwiękową.
Pomiar poziomu sondą ultradźwiękową.
Źródło: GroMar Sp. z o. o., licencja: CC BY-SA 3.0.
RyXEU59rWqCwa
Pomiar poziomu sondą ultradźwiękową.
Pomiar poziomu sondą ultradźwiękową.
Źródło: GroMar Sp. z o. o., licencja: CC BY-SA 3.0.
Zdjęcie numer . Sonda ultradźwiękowa.
Na zdjęciach przedstawiono pojemniki z zamontowaną sondą ultradźwiękową. Sonda na zdjęciach jest umieszczona w różnych miejscach. Sonda ultradźwiękowa jest to urządzenie do ciągłego, bezkontaktowego pomiaru poziomu cieczy. Na pierwszym zdjęciu widoczny jest zbiornik o kształcie przekroju prostokąta. Zbiornik jest w trzech czwartych wypełniony cieczą. W prawym górnym miejscu zbiornika widoczny jest kształt zbliżony do króćca. W otworze umieszczona jest sonda. Sonda przedstawiona jest jako element zbudowany z dwóch prostokątów. Dolnego poziomego i górnego pionowego wychodzącego z górnej krawędzi dolnego. Poniżej dolnej krawędzi prostokąta narysowane są trzy łuki. Łuki symbolizują sygnał. Na drugim zdjęciu poniżej widoczny jest zbiornik o kształcie cylindrycznym. Zbiornik jest w jednej czwartej wypełniony wodą. Poniżej górnej pokrywy zbiornika, umieszczona jest centrycznie sonda pomiarowa. Poniżej sondy narysowane są okręgi symbolizujące wysyłany sygnał. Do sondy przez pokrywę przechodzi kabel.
Sondy pojemnościowe służą do ciągłego pomiaru poziomu cieczy. Sonda pojemnościowa składa się z dwóch podstawowych elementów — głowicy i elektrody prętowej lub kablowej (napiętej obciążnikami lub sprężyną). Zasada działania polega na pomiarze pojemności, która zmienia się wraz ze zmiana poziomu medium wokół elektrody. Elektroda tworzy ze zbiornikiem i mierzonym medium kondensator.
RAcOEXa03C37F
Na zdjęciu przedstawiono pojemnik z zamontowaną sondą pojemnościowa. Sonda jest to urządzenie do ciągłego, bezkontaktowego pomiaru poziomu cieczy. Na zdjęciu po lewej stronie widoczny jest zbiornik o kształcie przekroju prostokąta. Zbiornik jest w trzech czwartych wypełniony cieczą. W prawej części zbiornika widoczna jest sonda pojemnościowa. Część sondy nazywana głowicą wystaje powyżej krawędzi zbiornika. Głowica jest o kształcie pionowego prostokąta. Do prawej krawędzi prostokąta dochodzi kabel. Od dolnej krawędzi prostokąta odchodzi cienki pionowy kształt który stanowi elektrodę prętową lub kablową. Elektroda jest zanurzona w cieczy. Do górnej części elektrody znajdującej się powyżej poziomu cieczy oraz dolnej części elektrody zanurzonej cieczy odchodzi do prawej krawędzi zbiornika prosta podzielona na pół. W miejscu podziału znajdują się dwie równoległe względem siebie a prostopadłe względem prostej dwa krótkie odcinki. elementy te wskazują że jest to obwód elektryczny.
Pomiar poziomu sondą pojemnościową.
Źródło: GroMar Sp. z o. o., licencja: CC BY-SA 3.0.
Sondy hydrostatyczne używane są do pomiaru poziomu cieczy w zbiornikach otwartych i ciśnieniowych. Wyróżniają się wysoką dokładnością pomiaru. Pomiar polega na określeniu ciśnienia hydrostatycznego słupa cieczy działającego na membranę pomiarową sondy. Ugniecenie membrany powoduje zmianę pojemności kondensatora pomiarowego, a układ elektroniczny przetwarza sygnał wejściowy na sygnał prądowy.
R1AA4tU2aQNe4
Pomiar poziomu sondą hydrostatyczną.
Pomiar poziomu sondą hydrostatyczną.
Źródło: GroMar Sp. z o. o., licencja: CC BY-SA 3.0.
RwTuYUZF5yc6l
Pomiar poziomu sondą hydrostatyczną.
Pomiar poziomu sondą hydrostatyczną.
Źródło: GroMar Sp. z o. o., licencja: CC BY-SA 3.0.
Zdjęcie numer . Sonda hydrostatyczna.
Na zdjęciach przedstawiono pojemniki z zamontowaną sondą hydrostatyczną. Sonda na zdjęciach jest umieszczona w różnych miejscach. Sonda hydrostatyczna jest to urządzenie wykorzystywane do pomiaru poziomu cieczy w zbiornikach otwartych i ciśnieniowych. Na pierwszym zdjęciu widoczny jest zbiornik o kształcie przekroju prostokąta. Zbiornik jest w trzech czwartych wypełniony cieczą. W prawym dolnym miejscu zbiornika zamontowana jest sonda. Sonda przedstawiona jest jako obwód elektryczny. Od części sondy znajdującej się za obrysem zbiornika odchodzi kabel. Kabel jest połączony z rejestratorem. Rejestrator jest w kształcie prostokąta z narysowanym ekranem i czterema przyciskami Na drugim zdjęciu poniżej widoczny jest zbiornik o kształcie cylindrycznym. Zbiornik jest w trzech czwartych wypełniony wodą. Na dnie zbiornika z lewej jego strony widoczna jest sonda. Sonda jest w kształcie cienkiego podłużnego cylindra. Od górnej podstawy cylindra odchodzi kabel. Kabel biegnie do góry poza górną pokrywę zbiornika.
Sondy elektromechaniczne służą do pomiaru poziomu cieczy i materiałów sypkich. Urządzenie opuszcza ciężarek zawieszony na lince pomiarowej w głąb zbiornika, a po dotknięciu powierzchni płynu, następuje zmiana kierunku obrotów silnika. Podczas ruchu w górę mierzona jest długość linki i na tej podstawie określany jest poziom. Ciężarek w formie pływaka może spoczywać cały czas na powierzchni cieczy i w ten sposób podawać natychmiastową informację. Sondy elektromechaniczne przeznaczone są głównie do pomiaru poziomu lustra tam, gdzie konieczny jest pomiar mediów o podwyższonej lepkości i agresywności.
Sondy pływakowe (magnetostrykcyjne) służą do ciągłego, dokładnego (dokładność – zakresu) pomiaru poziomu cieczy w zbiorniku. Sonda montowana jest od góry zbiornika. Zbudowana jest z części elektronicznej zamkniętej w obudowie oraz czujnika umieszczonego w stalowej rurze. Na rurze znajduje się pływak posiadający właściwości magnetyczne. Pływak przemieszcza się wraz ze zmianą poziomu w zbiorniku. Wykorzystując zjawisko magnetostrykcji, przetwornik sondy określa aktualne położenie pływaka, a tym samym poziom cieczy w zbiorniku.
RIaFBTxFSyekx
Na zdjęciu przedstawiono pojemnik z zamontowaną sondą pływakową. Sonda pływakowa wykorzystywana jest do ciągłego, dokładnego pomiaru poziomu cieczy w zbiorniku. Sonda montowana jest od góry zbiornika. Na zdjęciu widoczny jest zbiornik o kształcie cylindrycznym. Zbiornik jest w jednej czwartej wypełniony wodą. Z prawej strony górnej pokrywy zbiornika znajduje się otwór przez który poprowadzona jest cienka pionowa rurka. Rurka jest zanurzona w cieczy. Na końcu rurki znajduje się półokrągły element służący do jej zamknięcia. Powyżej poziomu cieczy na rurce zamontowany jest element o kształcie walca. Jest to pływak. Powyżej pokrywy zbiornika widoczne jest zakończenie rurki od którego biegnie przewód.
Pomiar poziomu sondą pływakową.
Źródło: GroMar Sp. z o. o., licencja: CC BY-SA 3.0.
Listwa pomiarowa służy do pomiaru poziomu cieczy w zbiorniku, gdzie wymagana jest legalizacja zbiornika przez Główny Urząd Miar. Pomiar odbywa się poprzez zanurzenie listwy pomiarowej w zbiorniku za pomocą króćca pomiarowego. Po sczytaniu wskazania z listwy, wartości odczytuje się z tabeli litrażowej (przeliczeniowej).
R1YLhCoaCngTU
Na zdjęciu przedstawiona jest listwa pomiarowa. Listwa pomiarowa służy do pomiaru poziomu cieczy w zbiorniku, gdzie wymagana jest legalizacja zbiornika przez Główny Urząd Miar. Listwa jest w kształcie prostokąta. U góry listwy, na krótszym jej boku znajduje się oznaczenie sto sześćdziesiąt cztery łamane na zero cztery. Z prawej strony listy na dłuższym jej boku znajduje się miarka. Długość miarki wynosi sto pięćdziesiąt centymetrów. Znaczniki główne są z zamieszczoną etykietą. Krok to jeden centymetr. Znaczniki dodatkowe symbolizujące milimetry są bez etykiety. Poniżej znaczników miarki widoczne jest oznaczenie RP T dziewięćdziesiąt siedem sto pięćdziesiąt pięć.
Listwa pomiarowa – przymiar sztywny.
Źródło: GroMar Sp. z o. o., licencja: CC BY-SA 3.0.
RT8jhtErZzAxf
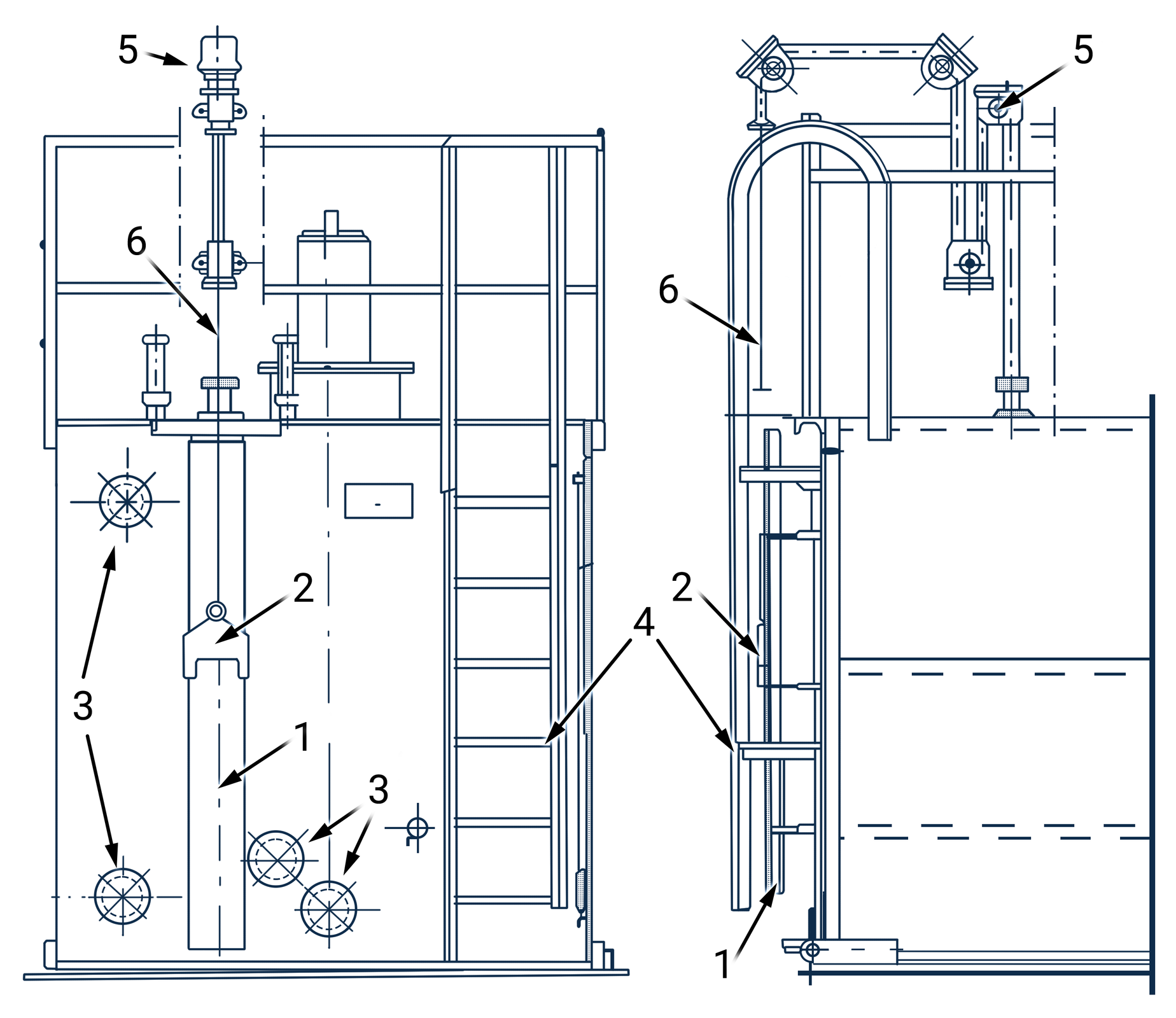
Na zdjęciu przedstawiona schemat listwy pomiarowej. Listwa pomiarowa służy do pomiaru poziomu cieczy w zbiorniku, gdzie wymagana jest legalizacja zbiornika przez Główny Urząd Miar. Listwa jest w kształcie prostokąta. U góry listwy, na krótszym jej boku znajduje się oznaczenie Ł jeden i pół metra. Oznaczenie jest opisane cyfrą jeden oznaczającą symbol pomiaru. Niżej symbolu widoczny jest napis Centymex, Brokułowa siedem a, dziewięćdziesiąt osiem trzysta Wieluń. Przypisana jest mu cyfra dwa oznaczająca nazwę firmy i adres. Pod adresem znajduje się napis: jeden łamane na siedemnaście. Napis jest oznaczony cyfrą trzy oznaczający numer przymiaru. Z prawej strony listy na dłuższym jej boku znajduje się miarka. Długość miarki wynosi sto pięćdziesiąt centymetrów. Znaczniki główne są z zamieszczoną etykietą. Krok co dziesięć centymetrów. Znaczniki dodatkowe większe symbolizujące centymetry. Znaczniki dodatkowe są z etykietą. Znajdują się pomiędzy znacznikami głównymi, Krok co jeden centymetr. Znaczniki dodatkowe mniejsze są bez etykiety. Krok co jeden milimetr. Długość miarki stop pięćdziesiąt centymetrów W dolnej części miarki w prostokącie widoczny jest napis: Centymex. Napis oznaczony jest cyfrą cztery. Jest to nazwa producenta. Niżej prostokąta, bliżej krótszego boku miarki znajduje się oznaczenie jeden cztery cztery sześć. Oznaczenie jest opisane cyfrą pięć. Jest to numer jednostki notyfikowanej. Niżej numeru jednostki w stronę krótszej krawędzi miarki znajduje się prostokąt w którym widoczny jest symbol M siedemnaście. Element ten opisany jest cyfrą sześć stanowiącą oznaczenie metrologiczne. Pod oznaczeniem od strony krótszego boku miarki znajduje się znak CE z przypisaną cyfrą siedem. Pod znakiem od strony krótszej krawędzi umieszczony jest owalny kształt z wpisaną dwójką rzymską. Symbol ten opisany jest cyfrą osiem określającą oznaczenie klasy dokładności. Pod symbolem znajduje się liczba jeden i pół metra. Liczba opisana jest cyfrą dziewięć oznaczającą długość nominalną w metrach.
Przymiar sztywny –listwa pomiarowa do pomiaru wysokości napełniania zbiorników Ł : 1 – symbol przymiaru, 2 – nazwa firmy i adres, 3 – numer przymiaru, 4 – nazwa producenta, 5 – numer jednostki notyfikowanej, 6 – oznaczenie metrologiczne, 7 – znak CE, 8 – oznaczenie klasy dokładności, 9 – długość nominalna w .
Źródło: GroMar Sp. z o. o., licencja: CC BY-SA 3.0.
Płynowskaz umożliwia pomiar poziomu cieczy w zbiorniku, gdzie jest on sczytywany za pomocą przeźroczystej rurki szklanej lub specjalnej łaty pomiarowej zamontowanej na zbiorniku.
R1Yw7wvrtoztw
Na zdjęciu przedstawiono czarno‑biały schemat płynowskazu z rurką szklaną. Płynowskaz umożliwia pomiar poziomu cieczy w zbiorniku gdzie jest on sczytywany za pomocą przeźroczystej rurki szklanej lub specjalnej łaty pomiarowej zamontowanej na zbiorniku. Centralnym elementem schematu jest zbiornik o kształcie zbliżonym do podłużnego prostokąta o orientacji poziomej. Dno zbiornika jest w kształcie trójkąta równoramiennego. Wierzchołek trójkąta jest zwrócony w stronę dołu. Od tego wierzchołka odchodzi przyłącze rurowe. Przyłącze skierowane jest w prawą stronę. Na końcu przyłącza znajduje się zawór za którym jest wylot. Element opisany jest cyfrą sześć oznaczającą wylot płynu. Wylot zamykany jest kolejnym zaworem. Do miejsca na wylocie znajdującego się pomiędzy dwoma zaworami biegnie pionowy element o kształcie cienkiego walca. Element opisany jest cyfrą pięć. Jest to płynowskaz. Płynowskaz biegnie równolegle do zbiornika. Dodatkowo płynowskaz połączony jest w różnych wysokościach zbiornika dodatkowymi dziewięcioma przyłączami. W prawej górnej części zbiornika znajduje się element o cienki prostokątny element. W połowie jego długości znajduje się niewielki trójkąt na którego wierzchołku osadzony jest okrągły element Całość jest opisana cyfrą trzy oznaczającą właz górny. W połowie długości górnej krawędzi zbiornika znajduje się pionowy prostokąt. Nad prostokątem umieszczony jest kwadrat. Kwadrat jest wypełniony gradientowym kolorem szarym. Element ten jest opisany cyfrą cztery. Oznacza on króciec pomiarowy. W dolnej części zbiornika widoczny jest element o kształcie poziomego prostokąta z zaokrąglonymi wierzchołkami. W centralnej części elementu znajduje się najprawdopodobniej kurek. Element opisany jest cyfrą jeden oznaczającą właz boczny. Z lewej strony zbiornika biegnie podłużna cienka rurka. Rurka jest równoległa względem zbiornika. Rurka łączy się ze zbiornikiem po lewej stronie górnej części zbiornika. Rurka jest opisany cyfrą dwa oznaczającą wlot płynu. Przed miejscem stanowiącym przyłączenie rurki do zbiornika znajduje się zawór.
Źródło: GroMar Sp. z o. o., licencja: CC BY-SA 3.0.
R14BtwPHlmKW7
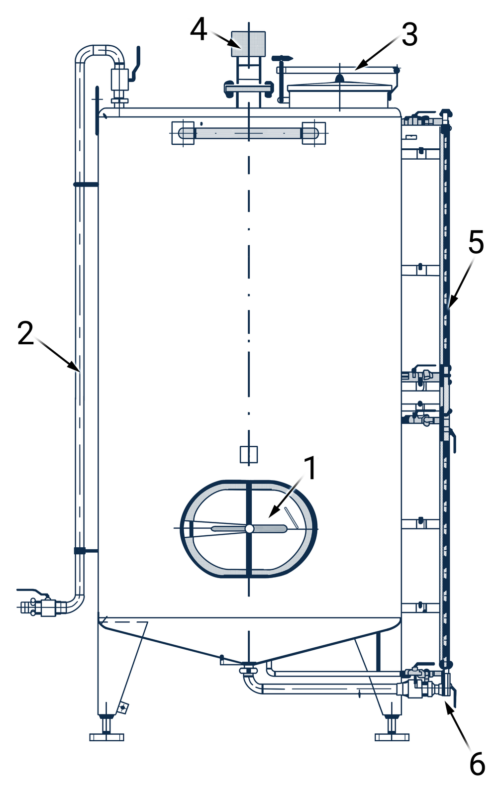
Na zdjęciu przedstawiono czarno‑białe schematy płynowskazu z łatą pomiarową. Po lewej stronie zdjęcia znajduje się przekrój płynowskazy widoczny w rzucie głównym. Po prawej stronie zdjęcia znajduje się rzut boczny płynowskazu. Płynowskaz umożliwia pomiar poziomu cieczy w zbiorniku gdzie jest on sczytywany za pomocą przeźroczystej rurki szklanej lub specjalnej łaty pomiarowej zamontowanej na zbiorniku. Centralnym elementem płynowskazu widocznego w rzucie głównym stanowi prostokątny zbiornik. W prawej części zbiornika widoczna jest drabinka opisana cyfrą dwa. W lewej części zbiornika widać łatę pomiarową wraz z armaturą zewnętrzną na zbiorniku. Na ścianie zbiornika znajdują się cztery okręgi z narysowanym w środku symbolem o kształcie litery iks. Trzy okręgi widoczne są w dolnej części zbiornika a jeden w górnej części. Okręgi są opisane cyfrą trzy oznaczające kryzy przyłączeniowe. Od górnej części zbiornika praktycznie do dna biegnie cienki prostokątny element o orientacji pionowej. W połowie wysokości elementu znajduje się kształt zbliżony do literki A, jest on opisany cyfrą dwa oznaczającą płynowskaz. Nad górną częścią zbiornika od prostokątnego elementu odchodzą najprawdopodobniej dwa zawory. Są one rozmieszczone po dwóch stronach łaty pomiarowej. Elementy są w kształcie cienkich pionowych prostokątów. Przez prostokątny element łaty pomiarowej biegnie cienka czarna lina opisana cyfrą sześć. Jest to linka stalowa. Linka łączy układ przełożenia linki stalowej opisany cyfrą pięć, który znajduje się na łata pomiarowa z płynowskazem. Na zdjęciu po prawej stronie widoczny jest płynowskaz w rzucie bocznym. Zbiornik jest w kształcie prostokąta. Po prawej stronie zbiornika znajduje się drabina opisana cyfrą cztery oraz płynowskaz. Płynowskaz jest równolegle umieszczony względem bocznej krawędzi zbiornika. W górnej części zbiornika po lewej stronie znajduje się czarna linka opisana cyfrą sześć jest to linka stalowa. W prawej części zbiornika powyżej górnej jego krawędzi znajduje się element z bloczkiem opisany cyfr pięć. Jest to układ przełożenia linki stalowej.
Płynowskaz z łatą pomiarową: 1 – łata pomiarowa, 2 – płynowskaz, 3 – kryzy przyłączeniowe, 4 – drabinka, 5 – układ przełożenia linki stalowej, 6 – linka stalowa.
Źródło: GroMar Sp. z o. o., licencja: CC BY-SA 3.0.
Poziomowskaz magnetyczny zbudowany jest z pionowej rurki (komory), która przymocowana jest do jegnego z boków zbiornika i w dolnej oraz górnej części połączona jest do wnętrza zbiornika. We wnętrzu komory znajduje się pływak magnetyczny. Do boku komoru zamontowana jest listwa z równomiernie rozmieszczonymi co pewną odległość dwukolorowe klapki (z jednej strony białe, z drugiej czerwone) wykonane z plastiku lub metalu z zamontowanmi do siebie magnesami, zamocowane do listwy, w taki sposób aby mogły się obracać. W wyniku działania prawa naczyń połączonych w zbiorniku i komorze ustala się taka sama wysokość słupa cieczy na której powierzchni unosi się magentyczny pływak. Podczas podnoszenia się poziomu cieczy pływak unosi się ku górze i obraca klapki ze strony białej na czerwoną, w wyniku działania siły magnetycznej pomiędzy magnesem zamontowanym w pływaku, a elementem magnetycznym klapki.W przypadku spadku poziomu cieczy klapki obrcane są ze strony czerwonej na białą. Odczyt odbywa się poprzez określenie wysokości czerwonej kolumny. Poziomowskaz magentyczny dokonuje pomiaru cieczy i umożliwia odczyt bez użycia prądu elektrycznego. Obecnie do poziomowskazów magentycznych montuje się listwy stycznikowe, w których w wyniku obrotu klapki na odpowiednią stronę dany stycznik umożliwia przepływ prądu elektrycznego. W ten sposób możliwy jest także elektroniczny odczyt poziomu cieczy.
R1eIKfMVF8RbE
Na zdjęciu przedstawiono trzy różne ujęcia poziomowskazu magnetycznego . Poziomowskaz magnetyczny jest to urządzenie wykorzystywane do pomiaru poziomu cieczy w różnego rodzaju instalacjach. Na zdjęciu z lewej widoczny jest stalowy zbiornik o kształcie walca. Lewa cześć zbiornika zaprezentowana jest w przekroju. Niebieska ciecz widoczna w przekroju wypełnia zbiornik do trzech czwartych wysokości. Po prawej stronie zbiornika widać odchodzące dwa przyłącza kołnierzowe. Przyłącza odchodzą z górnej części zbiornika znajdującej się ponad poziomem cieczy oraz z dolnej części zbiornika. Przyłącza dochodzą do poziomowskazu. Poziomowskaz jest przedstawiony jako pionowy stalowy element o kształcie podłużnego cylindra. Centralnym elementem poziomowskazu są czerwone i białe rolki. Czerwony kolor wskazuje poziom cieczy. Czerwone rolki na poziomowskazie znajdują się do trzech czwartych wysokości. Pozostałe rolki są w kolorze białym. Na środkowym zdjęciu widoczny jest poziomowskaz widziany pod kątem. Poziomowskaz jest przedstawiony jako pionowy stalowy element o kształcie podłużnego cylindra. Centralnym elementem poziomowskazu są czerwone i białe rolki. Czerwony kolor wskazuje poziom cieczy. Czerwone rolki na poziomowskazie znajdują się do trzech czwartych wysokości. Pozostałe rolki są w kolorze białym. Podstawę poziomowskazu stanowi stalowy element o kształcie krótkiego cylindra. Wokół poziomowskazu na podstawie rozmieszczone są na planie kwadratu cztery śruby. Na zdjęciu z prawej widoczny jest fragment poziomowskazu widziany od przodu. Centralnym elementem poziomowskazu są czerwone i białe rolki znajdujące się pomiędzy stalową obudową. Czerwony kolor rolek pokazuje poziom cieczy.
Poziomowskaz magnetyczny.
Źródło: GroMar Sp. z o. o., licencja: CC BY-SA 3.0.