E‑book - Zasady obliczania instalacji gazowych

Spis treści
Zasady obliczania instalacji gazowychZasady obliczania instalacji gazowych
Budowa instalacji gazowejBudowa instalacji gazowej
Projekt instalacji gazuProjekt instalacji gazu
Obliczanie instalacji gazuObliczanie instalacji gazu
Zapotrzebowanie gazuZapotrzebowanie gazu
Wykaz źródełWykaz źródeł
Zasady obliczania instalacji gazowych
Instalacja gazowa jest to umieszczony w budynku lub poza nim (w przypadku, gdy kurek główny znajduje się np. w skrzynce umieszczonej w ogrodzeniu) układ przewodów i armatury gazowej oraz wyposażenie i urządzenia gazowe. Za początek instalacji gazowej uznaje się kurek główny gazowy, który ma za zadanie odcięcie instalacji od przyłącza. Zakończeniem instalacji są urządzenia gazowe takie jak kuchenka gazowa, gazowy podgrzewacz wody czy kocioł gazowy.
Na poniższym rysunku przestawiono gazomierz oraz przykładowy przebieg sieci gazowej i przyłącza w kolorze pomarańczowym, a także instalację gazową w kolorze żółtym.

Powrót do spisu treściPowrót do spisu treści
Budowa instalacji gazowej
Instalacja gazowa składa się z następujących elementów:
- kurek główny z reduktorem i gazomierzem. Kurek główny jest urządzeniem służącym do zamykania i otwierania przepływu gazu z przyłącza do instalacji gazowej. Punkt redukcyjny (reduktor) służy do obniżania i utrzymywania ciśnienia gazowego na wymaganym poziomie. Gazomierz określany jest urządzeniem redukcyjno‑pomiarowym.
- dopływ rozdzielczy czyli poziomy odcinek między kurkiem głównym a pionem
- pion – pionowy odcinek rury gazowej, który ma za zadanie dostarczenie gazu na poszczególne kondygnacje budynku
- przewody użytkowe czyli odcinki rur gazowych rozprowadzające gaz od pionu do urządzeń gazowych.
Aby zapewnić bezpieczeństwo i właściwe użytkowane każdy przewód doprowadzający gaz do urządzeń gazowych oraz pion powinien być wyposażony w zawór odcinający.
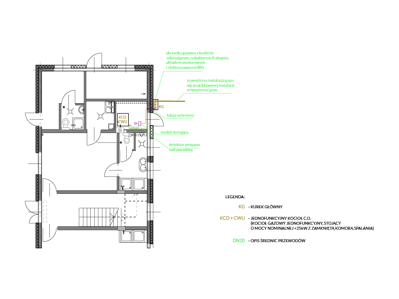
Przebieg instalacji gazowej w budynku jest uzależniony od architektonicznego układu budynku i rozkładu pomieszczeń przede wszystkim kuchni i łazienki ewentualnie kotłowni gdyż w tych pomieszczeniach najczęściej znajdują się urządzenia gazowe.
Poniższe rysunki przestawiają przykładowy projekt – rzut budynku z naniesioną instalacją gazową oraz aksonometrię instalacji gazowej.


Powrót do spisu treściPowrót do spisu treści
Projekt instalacji gazu
Na projekt instalacji gazu składają się: opis techniczny, rysunki i obliczenia.
Opis techniczny złożony jest z dwóch części:
części ogólnej, w której zawarte są następujące informacje: nazwa inwestora, przeznaczenie budynku oraz jego usytuowanie, charakterystyka budowlana i instalcyjna;
części szczególnej, która zawiera opis sposobu zasilania w paliwo gazowe, parametry gazu, wyposażenie w aparaty gazowe, zużycie gazu, a także materiały i sposób wykonania instalacji gazowej (tutaj opisuje się m.in. sposób zabezpieczenia antykorozyjnego).
Na rysunki składają się:
plan orientacyjny w skali 1:5 000 lub 1:10 000,
plan sytuacyjny w skali 1:5000 lub 1:1000 z zaznaczeniem gazociągu ulicznego i przyłącza,
rzuty poziome piwnicy oraz pięter w skali 1:50 lub 1:100, z zaznaczeniem przewodów i urządzeń gazowych (również przewodów spalinowych i kanałów wentylacyjnych),
rysunek aksonometryczny instalacji gazowej lub jej rozwinięcie w skali 1:50 lub 1:100
Część szczególna obejmuje:
podstawy obliczeń,
współczynniki obliczeniowe, które stosuje się dla danego rodzaju gazu,
obliczenie średnic przewodów i strat ciśnienia (w formie tabeli).
W celu wykonania obliczeń instalacji gazowej konieczne jest:
Określenie liczby, lokalizacji i rodzaju odbiorników gazowych
Zapoznanie się z rzutami architektonicznymi budynku
Narysowanie na rzutach wszystkich odbiorników gazu, ich moc i pobór gazu
Obliczenie maksymalnego zapotrzebowania gazu, czyli określenie, jaki będzie pobór gazu, gdy wszystkie odbiorniki będą użytkowane jednocześnie. Te dane są niezbędne do wystąpienia o warunki techniczne przyłączenia do sieci gazowej. Jeżeli budynek jest już przyłączony do sieci i instalacja gazowa jest remontowana właściwe obliczenia zapotrzebowania i porównanie z warunkami technicznym przyłączenia mogą stanowić podstawę do:
- zmiany warunków technicznych
- likwidacji części odbiorników
- zmiany mocy odbiorników.
Narysowanie na rzutach trasy instalacji
Oznaczenie pionu instalacji gazu
Narysowanie punktu redukcyjno – pomiarowego.
Narysowanie uproszczonego schematu obliczeniowego – jednokreskowe rozwinięcie instalacji
Opisanie na rzutach oraz w tabeli obliczeniowej wstępnie przyjętych średnic i materiałów instalacji.
Przewody instalacji gazowej należy wykonywać z rur stalowych bez szwu lub rur stalowych ze szwem przewodowym łączonych poprzez spawanie. Dopuszcza się stosowanie połączeń gwintowanych do przyłączenia armatury oraz innych połączeń w budynku mieszkalnym jednorodzinnym, mieszkalnym wielorodzinnym z gazomierzami odbiorców indywidualnych, jeżeli w budynku użyteczności publicznej lub zamieszkania zbiorowego znajdują się odgałęzienia prowadzące do odrębnych lokali. Dopuszcza się również wykorzystanie rur miedzianych i łączenie rur poprzez lutowanie twarde.
Dobranie gazomierza, W przypadku gdy pobór gazu nie przekracza 10mIndeks górny 33/h dostawca gazu narzuca typ gazomierza.
Wyznaczenie trasy instalacji gazu, dla której wykonane zostaną obliczenia hydrauliczne.
Obliczanie straty liniowej i miejscowej na poszczególnych odcinkach uwzględniając wartość przepływu gazu i wstępnie określoną średnicę
Dodanie do obliczeń poprawki spowodowanej różnicą poziomów.
Obliczenie rzeczywistej straty ciśnienia w instalacji. Rzeczywista strata ciśnienia w instalacji powinna zawierać się w granicach 80‑140 Pa.
Jeżeli strata ciśnienia jest zbyt duża konieczne jest ponowne dobranie średnic i ponowne wykonanie obliczeń.
Oznaczenie na rzutach ostatecznie przyjętych średnic.
Powrót do spisu treściPowrót do spisu treści
Obliczanie instalacji gazu
Gaz płynący przez rurociąg powoduje stratę ciśnienia. Zużywa się ono w celu pokonania oporów ruchu. Na opory tarcia składają się opory na długości i opory miejscowe. Dokonując obliczeń, miejscowe opory tarcia można zastąpić równoważnymi dla nich oporami tarcia zastępczych odcinków rurociągu prostego (zgodnie z danymi zamieszczonymi w poniższej tabeli).

Aby ustalić wielkość strat ciśnienia, należy więc obliczyć opory tarcia na długości, korzystając z następującego wzoru:
gdzie:
H - strata ciśnienia (równa oporowi ruchu) na długości L
A - współczynnik stały zależny od przyjętego układu jednostek miar,
Lambda - współczynnik tarcia zależny od lepkości gazu, charakteru ruchu, szorstkości rur itp.,
Gamma - ciężar właściwy gazu płynącego rurociągiem,
Q - objętość przepływu gazu,
d - średnica wewnętrzna rury.
Wzór na opory ruchu zawiera trzy nieznane wielkości: spadek ciśnienia, objętość przepływu i średnicę rury. Aby znaleźć jedną z nich (przeważnie niewiadomą jest średnica rury), trzeba znać pozostałe dwie wielkości.
Na podstawie doświadczeń stwierdzono, że spadek ciśnienia w instalacji (bez powodowania straty na gazomierzu i odbiorniku) nie powinien wynosić więcej niż:
w przypadku przyłącza niskiego ciśnienia: dla gazu sztucznego 100 Pa, a dla gazu ziemnego 150 Pa,
w przypadku przyłącza średniego ciśnienia: dla gazu sztucznego 150 Pa, a dla gazu ziemnego 350 Pa.
Kiedy znana jest długość drogi przepływu gazu do najmniej korzystnie położonego przyboru, gdy przyjmiemy, że opory miejscowe wynoszą około czterdziestu procent całkowitego oporu ruchu, można ustalić orientacyjną jednostkową stratę ciśnienia i dla danej instalacji. Jest to ważna informacja przy obliczaniu średnicy rur. Obliczając bilans strat ciśnienia, należy uwzględnić, że na skutek różnicy ciężarów między gazem a powietrzem w przypadku dodatniej różnicy wysokości h dla gazów lżejszych od powietrza uzyskujemy odzysk ciśnienia, który można wyrazić następującym wzorem:
Ponieważ objętość gazu (a więc jego gęstość i ciężar objętościowy) zależy od ciśnienia i temperatury, to wartość odzysku ciśnienia może być różna w zależności od temperatury otoczenia.
Dla przykładu: przy temperaturze 8 stopni Celsjusza i przy ciśnieniu normalnym ciężar objętościowy:
powietrza to 12,56 N/mIndeks górny 33,
gazu sztucznego wynosi 6,02 N/mIndeks górny 33,
gazu ziemnego wynosi 7,27 N/mIndeks górny 33.
Przyjmując powyższe dane odzysk ciśnienia na 1 m dodatniej różnicy wysokości wyniesie więc dla gazu sztucznego o ciężarze właściwym 6,4 N/m Indeks górny 33
Z kolei dla gazu ziemnego o ciężarze właściwym 7,5 N/mIndeks górny 33 odzysk ten wyniesie:
W obliczeniach przyjmujemy, że odzysk ciśnienia dla gazu sztucznego wynosi 6 Pa, a dla gazu ziemnego 5 Pa.
Należy podkreślić, że odzysk ciśnienia uwzględnia się tylko wtedy, gdy różnica poziomów wynosi więcej niż 1 metr.
Zjawisko odzysku ciśnienia może powodować, że ciśnienie przed gazomierzami różnych pięter będzie różne. Aby temu zapobiegać dobiera się średnice pionów w ten sposób, aby opory ruchu między piętrami równoważyły odzysk ciśnienia.
Kolejny parametr wymagający określenia to maksymalna objętość gazu, która przepływa przez rurociąg w określonym czasie. Dla obliczenia przewodów użytkowych i odgałęzień (za gazomierzem mieszkaniowym) przyjmuje się, że wszystkie odbiorniki znajdujące się w mieszkaniu działają w tym samym czasie.
Powrót do spisu treściPowrót do spisu treści
Zapotrzebowanie gazu
Jak obliczyć zapotrzebowanie gazu?
Stosowane są różne sposoby by obliczyć szczytowe (maksymalne) zużycie gazu zależnie od rodzaju budownictwa.
W budynku mieszkalnym jednorodzinnym wielkość szczytowego zużycia gazu obliczamy, sumując dla wszystkich odbiorników iloczyny zużycia gazu urządzenia i współczynnika jednoczesności rozbioru gazu dla tego urządzenia:

Gdzie:
QIndeks dolny UGUG – moc cieplna urządzenia gazowego [kW] (odczytujemy z katalogowej karty technicznej/ specyfikacji urządzenia)
ղIndeks dolny UGUG – sprawność urządzenia gazowego (odczytujemy z katalogowej karty technicznej/ specyfikacji urządzenia)
WIndeks dolny dd – wartość opałowa gazu [MJ/mIndeks dolny 33] (parametr od dostawcy gazu)
Współczynniki jednoczesności poboru gazu dla urządzenia gazowego odczytujemy z tabeli
Liczba urządzeń | fIndeks dolny KGKG | fIndeks dolny OWOW | fIndeks dolny KGWKGW | fIndeks dolny KGWDKGWD |
|---|---|---|---|---|
1 | 0,621 | 1,000 | 1,000 | 1,000 |
2 | 0,448 | 0,800 | 0,883 | 0,954 |
3 | 0,371 | 0,703 | 0,822 | 0,903 |
4 | 0,325 | 0,641 | 0,782 | 0,863 |
5 | 0,294 | 0,597 | 0,752 | 0,831 |
6 | 0,271 | 0,564 | 0,729 | 0,806 |
7 | 0,253 | 0,537 | 0,710 | 0,784 |
8 | 0,239 | 0,515 | 0,694 | 0,766 |
9 | 0,227 | 0,496 | 0,680 | 0,794 |
10 | 0,217 | 0,480 | 0,668 | 0,735 |
W budownictwie wielorodzinnym wielkość zapotrzebowania na gaz oblicza się ze wzoru:

Gdzie:
VS – suma obciążeń nominalnych urządzeń gazowych
n – liczba odbiorców
f – współczynnik jednoczesności rozbioru gazu do odczytu z tabeli:
Liczba odbiorców | f | Liczba odbiorców | f | Liczba odbiorców | f |
|---|---|---|---|---|---|
1 | 1,000 | 16 | 0,235 | 90 | 0,096 |
2 | 0,697 | 18 | 0,222 | 100 | 0,091 |
3 | 0,565 | 20 | 0,211 | 110 | 0,087 |
4 | 0,486 | 25 | 0,188 | 120 | 0,083 |
5 | 0,433 | 30 | 0,171 | 130 | 0,079 |
6 | 0,394 | 35 | 0,157 | 140 | 0,076 |
7 | 0,363 | 40 | 0,147 | 150 | 0,073 |
8 | 0,339 | 45 | 0,138 | 160 | 0,071 |
9 | 0,319 | 50 | 0,131 | 170 | 0,069 |
10 | 0,302 | 60 | 0,119 | 180 | 0,067 |
12 | 0,275 | 70 | 0,110 | 190 | 0,065 |
14 | 0,253 | 80 | 0,102 | 200 | 0,064 |
Powrót do spisu treściPowrót do spisu treści
Wykaz źródeł
Akty prawne:
Rozporządzenie Ministra Przedsiębiorczości i Technologii z dnia 10 stycznia 2019 r. zmieniające rozporządzenie w sprawie wymagań, którym powinny odpowiadać gazomierze i przeliczniki do gazomierzy, oraz szczegółowego zakresu sprawdzeń wykonywanych podczas prawnej kontroli metrologicznej tych przyrządów pomiarowych, Dz.U. z 2019 r. poz. 219.
Rozporządzenie Ministra Gospodarki z dnia 26 kwietnia 2013 r. w sprawie warunków technicznych, jakim powinny odpowiadać sieci gazowe i ich usytuowanie, Dz.U. z 2013 r. poz. 640.
Rozporządzenie Ministra Infrastruktury z dnia 27 listopada 2009 r. zmieniające rozporządzenie w sprawie warunków technicznych użytkowania budynków mieszkalnych, Dz.U. z 2009 r. nr 205 poz. 1584.
Obwieszczenie Ministra Inwestycji i Rozwoju z dnia 8 kwietnia 2019 r. w sprawie ogłoszenia jednolitego tekstu rozporządzenia Ministra Infrastruktury w sprawie warunków technicznych, jakim powinny odpowiadać budynki i ich usytuowanie, Dz.U. z 2019 r. poz. 1065.
Netografia:
Gaz System: https://www.gaz-system.pl (dostęp: 18.09.2022).
Instalacje gazowe: https://building-companion.pl/ (dostęp: 18.09.2021).
Instalacje gazowe: https://www.instalacjebudowlane.pl/7742-23-40-instalacja-gazowa-w-domu-jednorodzinnym.html (dostęp: 18.09.2021).
Bibliografia:
Bąkowski K., Sieci i instalacje gazowe, Wydawnictwo Naukowe PWN, Warszawa 2018.
Gazomierze: przeliczniki, Polski Komitet Normalizacyjny, Warszawa 2008.
Guzik J., Instalacje i sieci gazowe, KaBe, Krosno 2019.
Karpiński M., Instalacje gazu, WSiP, Warszawa 2000.
Powrót do spisu treściPowrót do spisu treści
