Wirtualny ośrodek dokumentacji geodezyjnej i kartograficznej (Wirtualny ODGiK)
BUD.18. Wykonywanie pomiarów sytuacyjnych, wysokościowych i realizacyjnych oraz opracowywanie wyników tych pomiarów - Technik geodeta 311104
Obieg dokumentów w pracach geodezyjnych
PLANSZA INTERAKTYWNA
Spis treści
Obieg dokumentówObieg dokumentów
Schemat podziału na zasób centralny, wojewódzki oraz powiatowy Państwowy zasób geodezyjny i kartograficzny (PZGiK)Schemat podziału na zasób centralny, wojewódzki oraz powiatowy Państwowy zasób geodezyjny i kartograficzny (PZGiK)
Wymagane dokumentyWymagane dokumenty
Obieg dokumentów
Przyjęcie zlecenia na wykonanie pracy geodezyjnej, np. mapa do celów projektowych lub inwentaryzacja powykonawcza.
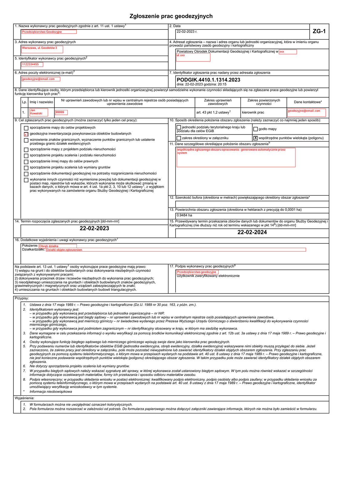
Zgłoszenie pracy we właściwym miejscowo Ośrodku Dokumentacji Geodezyjnej i Kartograficznej – zgłoszeń dokonuje się głównie w odpowiednim geoportalu powiatowym, w którym Wykonawca prac musi mieć założone konto. Po zalogowaniu do systemu należy zgłosić pracę wypełniając formularz zgłoszenia. Określić należy kto będzie kierownikiem prac, jaki jest cel pracy, termin rozpoczęcia oraz termin zakończenia a także jakiego obszaru dotyczy zgłoszenie. Opłata za materiały stanowi ryczałt i jej wysokość zależna jest od wielkości obszaru podlegającego zgłoszeniu, zgodnie z poniższą tabelą:
Udostępnianie materiałów zasobu dotyczących zgłoszonych prac geodezyjnych, o których mowa w art. 12 ust. 1 pkt 3 ustawy z dnia 17 maja 1989 r. - Prawo geodezyjne i kartograficzne
Lp. | Obszar objęty zgłoszeniem pracy | Opłata zryczałtowana |
1 | Do 1 ha | 129,34 zł |
2 | Powyżej 1 ha do 10 ha | 129,34 zł oraz dodatkowo kwota 12,03 zł za każdy rozpoczęty hektar powyżej 1 ha |
3 | Powyżej 10 ha | 228,65 zł oraz dodatkowo kwota 6,03 zł za każdy rozpoczęty hektar powyżej 10 ha |
Opłacenie pracy geodezyjnej – dopiero po uiszczeniu opłaty naliczonej przez system geodeta uzyskuje dostęp do materiałów niezbędnych do wykonania pracy, są to:
obiekty baz danych EGiB, BDOT500, GESUT
skanów operatów znajdujących się z zasobie PODGiK, dotyczących obszaru opracowania
rastrów map
danych opisowych (w przypadku opracowań dotyczących podziałów, wznowień znaków itp.)
Przygotowanie danych w teren – wybranie kilku punktów osnowy państwowej na obszarze otaczającym zakres opracowania, w celu wykonania pomiaru kontrolnego (GPS) lub stanowiących punkty nawiązania do pomiaru tachimetrycznego
Pomiar w terenie wraz ze sporządzeniem szkicu pomiaru oraz mapy porównania z terenem.
Opracowanie wyników pomiaru oraz sporządzenie operatu. Pomierzone punkty należy wprowadzić do bazy danych tworząc odpowiednie obiekty (budynki, przewody, itp.) aby następnie wydać plik GML dla ODGiK, którym to plikiem zostanie zasilona powiatowa baza danych.
Skład operatu zależny jest oczywiście od rodzaju wykonywanej pracy, np. w przypadku inwentaryzacji powykonawczej przyłączy oraz budynku typowy operat będzie zawierał:
sprawozdanie techniczne
mapę porównania z terenem
szkic pomiarowy
wykaz współrzędnych
wykaz zmian danych ewidencyjnych
arkusz danych ewidencyjnych budynku
Przekazanie operatu do kontroli – sporządzony operat w postaci numerycznej (jeden plik pdf) podpisany elektronicznie wraz z plikiem GML przekazuje się za pomocą geoportalu do skontrolowania przez Powiatowy Ośrodek Dokumentacji Geodezyjnej i Kartograficznej, wysyłając za pomocą systemu zawiadomienie o zakończeniu prac.
Kontrola – wynikiem kontroli jest sporządzenie przez inspektora przeprowadzającego kontrolę Protokołu weryfikacji. Wynik kontroli może być pozytywny co skutkuje przyjęciem operatu do zasobu i wprowadzeniem zmian do baz powiatowych lub też negatywny, wówczas w protokole weryfikacji Wykonawca prac otrzymuje informację zwrotną dotyczącą błędów w operacie. Opracowanie po poprawie należy przekazać ponownie do weryfikacji.
Zakończenie prac - otrzymanie pozytywnego wyniku kontroli, np. w przypadku wykonywania mapy do celów projektowych daje możliwość przygotowania wynikowych map dla inwestora wraz ze stosowną klauzulą, oraz wystawienia rachunku.
Powrót do spisu treściPowrót do spisu treści
Schemat podziału na zasób centralny, wojewódzki oraz powiatowy Państwowy zasób geodezyjny i kartograficzny (PZGiK)
Do zadań starosty należy w szczególności:
prowadzenie powiatowego zasobu geodezyjnego i kartograficznego
koordynacja usytuowania projektowanych sieci uzbrojenia terenu;
zakładanie osnów szczegółowych;
przeprowadzanie powszechnej taksacji nieruchomości oraz opracowywanie i prowadzenie map i tabel taksacyjnych dotyczących nieruchomości;
ochrona znaków geodezyjnych, grawimetrycznych i magnetycznych;
Do zadań marszałka województwa należy w szczególności:
prowadzenie wojewódzkiego zasobu geodezyjnego i kartograficznego;
wykonywanie i udostępnianie kartograficznych opracowań tematycznych dla obszaru województwa;
tworzenie, w uzgodnieniu z Głównym Geodetą Kraju, oraz prowadzenie i udostępnianie bazy danych oraz standardowych opracowań kartograficznych w skali 1:10 000
analiza zmian w strukturze agrarnej oraz programowanie i koordynacja prac urządzeniowo‑rolnych;
monitorowanie zmian w sposobie użytkowania gruntów oraz ich bonitacji;
współdziałanie z Głównym Geodetą Kraju w prowadzeniu państwowego rejestru granic i powierzchni jednostek podziałów terytorialnych kraju, w tym prowadzeniu bazy danych w części dotyczącej obszaru województwa.
Wojewódzki inspektor nadzoru geodezyjnego i kartograficznego działający w imieniu wojewody wykonuje zadania niezastrzeżone na rzecz organów administracji geodezyjnej i kartograficznej, a w szczególności:
kontroluje przestrzeganie i stosowanie przepisów ustawy, a w szczególności:
a) zgodność wykonywania prac geodezyjnych i kartograficznych z przepisami ustawy,
b) posiadanie uprawnień zawodowych przez osoby wykonujące samodzielne funkcje w dziedzinie geodezji i kartografii;
kontroluje działania administracji geodezyjnej i kartograficznej;
współdziała z Głównym Geodetą Kraju oraz organami kontroli państwowej w zakresie właściwości nadzoru geodezyjnego i kartograficznego;
przechowuje kopie zabezpieczające baz danych, w szczególności bazy danych ewidencji gruntów i budynków;
na wniosek starosty wyraża opinię o przygotowaniu gminy do przejęcia zadań w trybie art. 6a ust. 4.
Główny Geodeta Kraju wykonuje zadania określone w ustawie, a w szczególności:
nadzoruje realizację polityki państwa w zakresie geodezji i kartografii;
pełni funkcję organu wyższego stopnia w rozumieniu Kodeksu postępowania administracyjnego w stosunku do wojewódzkich inspektorów nadzoru geodezyjnego i kartograficznego, a także nadzoruje i kontroluje ich działania;
prowadzi centralny zasób geodezyjny i kartograficzny oraz dysponuje środkami Funduszu Gospodarki Zasobem Geodezyjnym i Kartograficznym;
zakłada podstawowe osnowy geodezyjne, grawimetryczne i magnetyczne i prowadzi w oparciu o bazę danych, państwowy rejestr podstawowych osnów geodezyjnych, grawimetrycznych i magnetycznych;
inicjuje i koordynuje działania w zakresie tworzenia zintegrowanego systemu informacji o nieruchomościach oraz tworzy i utrzymuje, we współpracy z innymi organami administracji publicznej, infrastrukturę techniczną tego systemu;
zakłada i prowadzi, we współpracy z właściwymi organami administracji publicznej, bazę danych, oraz prowadzi na podstawie tej bazy, państwowy rejestr granic i powierzchni jednostek podziałów terytorialnych kraju, zintegrowany z ewidencją gruntów i budynków oraz ewidencją miejscowości, ulic i adresów, umożliwiający gromadzenie, aktualizowanie i udostępnianie danych dotyczących:
a) granic państwa,
b) granic jednostek podziałów terytorialnych kraju, w tym w szczególności:
zasadniczego trójstopniowego podziału terytorialnego państwa,
podziału kraju na potrzeby ewidencji gruntów i budynków,
podziału kraju na potrzeby statystyki publicznej,
podziału kraju ze względu na właściwość miejscową sądów,
podziału kraju ze względu na właściwość miejscową organów i jednostek organizacyjnych administracji specjalnej, w szczególności: archiwów państwowych, urzędów skarbowych, izb administracji skarbowej, nadleśnictw, regionalnych dyrekcji Lasów Państwowych, zarządów zlewni Państwowego Gospodarstwa Wodnego Wody Polskie, regionalnych zarządów gospodarki wodnej Państwowego Gospodarstwa Wodnego Wody Polskie, urzędów morskich,
c) granic pasa nadbrzeżnego, granic portów i przystani morskich, morskiej linii brzegowej, linii podstawowej i granicy morza terytorialnego Rzeczypospolitej Polskiej,
d) pola powierzchni jednostek zasadniczego trójstopniowego podziału terytorialnego państwa, pola powierzchni obszarów morskich Rzeczypospolitej Polskiej oraz pola powierzchni jednostek podziału kraju na potrzeby ewidencji gruntów i budynków,
e) adresów i ich lokalizacji przestrzennej;
współpracuje z wyspecjalizowanymi w dziedzinie geodezji i kartografii organizacjami międzynarodowymi, regionalnymi oraz organami i urzędami innych krajów;
inicjuje prace naukowe i badawczo‑rozwojowe w zakresie standardów organizacyjno‑technicznych oraz zastosowania metod informatycznych, fotogrametrycznych i satelitarnych w dziedzinie geodezji i kartografii oraz w krajowym systemie informacji o terenie;
nadaje uprawnienia zawodowe w dziedzinie geodezji i kartografii, prowadzi rejestr osób uprawnionych oraz współpracuje z samorządami i organizacjami zawodowymi geodetów i kartografów;
prowadzi sprawy związane z ochroną informacji niejawnych w działalności geodezyjnej i kartograficznej;
koordynuje działania organów administracji publicznej oraz innych podmiotów realizujących zadania publiczne dotyczące baz danych, oraz standardowych opracowań kartograficznych, a także współdziała, na podstawie odrębnych porozumień, w zakresie merytorycznym i finansowym w ich realizacji;
tworzy, prowadzi i udostępnia:
a) bazę danych, o której mowa w art. 4 ust. 1a pkt 9,
b) zintegrowane kopie baz danych, o których mowa w art. 4 ust. 1a pkt 8,
c) bazę zobrazowań lotniczych i satelitarnych oraz ortofotomapy i numerycznego modelu terenu,
d) standardowe opracowania kartograficzne w skalach: 1:25 000, 1:50 000, 1:100 000, 1:250 000, 1:500 000, 1:1 000 000,
e) kartograficzne opracowania tematyczne i specjalne;
prowadzi sprawy związane ze standaryzacją polskojęzycznego nazewnictwa obiektów geograficznych położonych poza granicami Rzeczypospolitej Polskiej oraz bazę danych państwowego rejestru nazw geograficznych, o której mowa w art. 4 ust. 1a pkt 5, zawierającą aktualne i historyczne informacje dotyczące:
a) nazw miejscowości i ich części oraz obiektów fizjograficznych,
b) polskojęzycznego brzmienia nazw obiektów geograficznych położonych poza granicami Rzeczypospolitej Polskiej;
zakłada i prowadzi dla obszaru kraju bazę danych geodezyjnej ewidencji sieci uzbrojenia terenu;
opracowuje i przedkłada Radzie Ministrów, za pośrednictwem ministra właściwego do spraw budownictwa, planowania i zagospodarowania przestrzennego oraz mieszkalnictwa, projekty rządowych programów realizacji zadań z dziedziny geodezji i kartografii, a w szczególności w zakresie: modernizacji ewidencji gruntów i budynków (katastru nieruchomości), tworzenia baz danych obiektów topograficznych i ogólnogeograficznych wraz z numerycznymi modelami rzeźby terenu, opracowań tematycznych i specjalnych, zobrazowań lotniczych i satelitarnych oraz ortofotomapy i numerycznego modelu terenu;
tworzy system i program szkoleń w dziedzinie geodezji i kartografii oraz współdziała z ośrodkami naukowymi, badawczo‑rozwojowymi i organizacjami zawodowymi w realizacji tych szkoleń;
utrzymuje i rozbudowuje infrastrukturę i systemy teleinformatyczne umożliwiające dostęp do danych przestrzennych centralnego zasobu geodezyjnego i kartograficznego oraz usług związanych z tymi danymi.
Grafika przedstawia schemat podziału na zasób centralny, wojewódzki oraz powiatowy Państwowego zasobu geodezyjnego i kartograficznego. W ramkach scharakteryzowane są kolejne zasoby.
Pierwsza ramka: Powiatowy zasób geodezyjny i kartograficzny. Prowadzenie powiatowego zasobu geodezyjnego i kartograficznego oraz weryfikacja opracowań przyjmowanych do zasobu należy do starosty. W powiatowym zasobie geodezyjnym i kartograficznym są gromadzone zbiory danych, dla których prowadzenia właściwym jest starosta, utworzone na podstawie tych zbiorów danych opracowania kartograficzne, rejestry, wykazy i zestawienia oraz dokumentacja zawierająca wyniki prac geodezyjnych lub dokumenty utworzone w wyniku realizacji tych prac.
Druga ramka: Wojewódzki zasób geodezyjny i kartograficzny. Prowadzenie wojewódzkiego zasobu geodezyjnego i kartograficznego oraz weryfikacja opracowań przyjmowanych do zasobu należy do marszałka województwa. W wojewódzkim zasobie geodezyjnym i kartograficznym są gromadzone zbiory danych, dla których prowadzenia właściwym jest marszałek województwa, utworzone na podstawie tych zbiorów danych opracowania kartograficzne, rejestry, wykazy i zestawienia oraz dokumentacja zawierająca wyniki prac geodezyjnych lub prac kartograficznych lub dokumenty utworzone w wyniku realizacji tych prac.
Trzecia ramka: Centralny zasób geodezyjny i kartograficzny. Prowadzenie centralnego zasobu geodezyjnego i kartograficznego oraz weryfikacja opracowań przyjmowanych do zasobu należy do Głównego Geodety Kraju. W centralnym zasobie geodezyjnym i kartograficznym są gromadzone zbiory danych, dla których prowadzenia właściwym jest Główny Geodeta Kraju, utworzone na podstawie tych zbiorów danych opracowania kartograficzne, rejestry, wykazy i zestawienia oraz dokumentacja zawierająca wyniki prac geodezyjnych lub prac kartograficznych lub dokumenty utworzone w wyniku realizacji tych prac.
Powrót do spisu treściPowrót do spisu treści
Wymagane dokumenty
Przykładowe dokumenty dotyczące pracy geodezyjnej polegającej na inwentaryzacji powykonawczej budynku wraz z przyłączem.
Zgłoszenie pracy geodezyjnej wraz z przykładowym operatem.






Powrót do spisu treściPowrót do spisu treści