E‑book do e‑materiału Procesy wytwarzania odlewów
MTL.02. Eksploatacja maszyn i urządzeń odlewniczych - Operator maszyn i urządzeń odlewniczych 812107, Technik odlewnik 311705
Metody wytwarzania odlewów
Spis treści
Rys historyczny odlewnictwaRys historyczny odlewnictwa
Zalety i wady odlewaniaZalety i wady odlewania
Klasyfikacja metod odlewaniaKlasyfikacja metod odlewania
Dokumentacja technologiczna wytwarzania odlewówDokumentacja technologiczna wytwarzania odlewów
Modele odlewnicze i układ zasilającyModele odlewnicze i układ zasilający
Etapy procesu wytwarzania odlewówEtapy procesu wytwarzania odlewów
Mechanizacja i automatyzacja procesów wytwarzania odlewów
Technologie drukowania 3D w odlewnictwieTechnologie drukowania 3D w odlewnictwie
Słownik pojęćSłownik pojęć
BibliografiaBibliografia
Mechanizacja i automatyzacja procesów wytwarzania odlewów
Zakres wybijania i oczyszczania odlewów
Do usuwania odlewów i masy formierskiej ze skrzynek stosuje się następujące urządzenia:
wypychacze statyczne,
RtwWvRRpsexs8
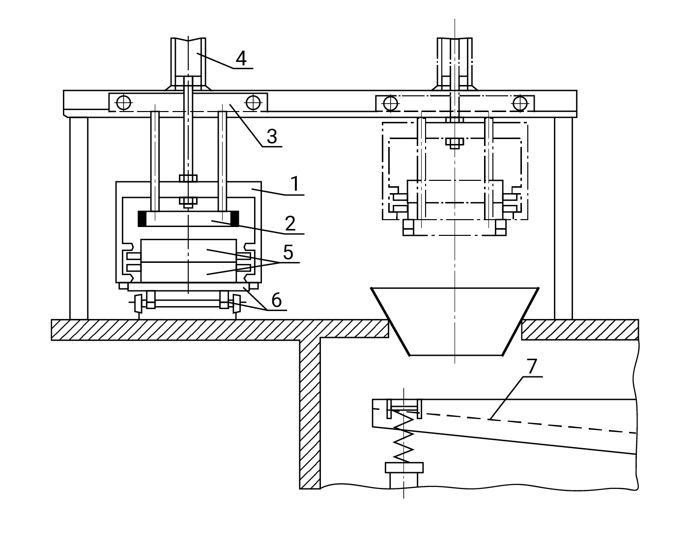
Stanowisko do wypychania form z odlewami ze skrzynek:
- uchwyt skrzyni,
- wypychacz,
- wózek,
- siłownik,
- forma,
- odlewniczy przenośnik wózkowy,
- przenośnik wibracyjny.Źródło: GroMar Sp. z o.o., licencja: CC BY-SA 3.0.bębny wieloczynnościowe,
R1bUIppZdAsuU
Wieloczynnościowy bęben do wybijania odlewów oraz schładzania masy i odlewów:
- załadunek odlewów z masą formierską,
- natrysk wodny,
- schłodzone odlewy,
- schłodzona masa formierska zwrotna,
- pobieranie próbek masy formierskiej (celem ustalenia potrzebnej ilości dodawanej wody); strzałkami oznaczono kierunki przepływu powietrza.Źródło: GroMar Sp. z o.o., licencja: CC BY-SA 3.0.kraty:
stałe, na których odlewy wybijane są ręcznie,
ruchome: wstrząsowe o napędzie pneumatycznym, które mają duży skok oraz małą częstotliwość wstrząsów ( na minutę), oraz wibracyjne o napędzie mechanicznym, charakteryzujące się małą amplitudą (zwykle ok. ) oraz dużą częstością drgań ( na minutę).
RLpWPm14Uh9U6
Wibracyjna krata do wybijania odlewówŹródło: GroMar Sp. z o.o., licencja: CC BY-SA 3.0.
Zakres wytapiania stopów

Źródło ciepła | Rodzaj i typ ciepła | Szkic | Rodzaj paliwa lub energii cieplnej | Zastosowanie |
|---|---|---|---|---|
Piece na paliwo stałe, ciekłe i gazowe | Szybowe. Żeliwiaki: bez zbiornika ze zbiornikiem, kilka rzędów dysz z podgrzewanym dmuchem metalurgicznym | Ideowy rysunek pieca szybowego żeliwaka | Koks (bardzo rzadko gaz lub ropa wytapiany metal styka się bezpośrednio z paliwem | Żeliwo szare, białe, sferoidalne, do procesu duplex, żeliwak - -- konwertor lub żeliwak – piec elektryczny do wytopów staliwa bardzo rzadko do wytopów brązu na węglu drzewnym) |
Piece na paliwo stałe, ciekłe i gazowe | Płomienne. Płomienniki stałe | Ideowy rysunek płoiennika stałego | Węgiel kamienny, gaz, ropa, mazut, pył węglowy | Żeliwo szare, ciągliwe, stopowe, szczególnie gdy wsad metalowy ma postać nie nadającą się do żeliwiaka np. złom walców hutniczych, stopy miedzi |
Piece na paliwo stałe, ciekłe i gazowe | Płomienne. Płomienniki obrotowe | Ideowy rysunek płomiennika obrotowego | Gaz ropa mazut pył węglowy | Wszystkie rodzaje żeliwa, stopy miedzi |
Piece na paliwo stałe, ciekłe i gazowe | Tyglowe. Stałe | Ideowy rysunek pieca tyglowego stałego | Koks, gaz, ropa, mazut | Stopy aluminium, cynku, magnezu, miedzi, wyjątkowo stal narzędziowa |
Piece na paliwo stałe, ciekłe i gazowe | Tyglowe. Przechylne | Ideowy rysunek pieca tyglowego przechylnego | Gaz, ropa, mazut | Stopy aluminium, cynku, magnezu |
Reakcje chemiczne w metalu | Konwertory Bessemera lub Troppenasa tlenowe | Ideowy rysunek konwertora | Bez paliwa, reakcje utleniania składników surówki: węgla, krzemu, manganu, fosforu | Staliwa węglowe |
Piece elektryczne | Łukowe o łuku bezpośrednim (trójfazowym) | Ideowy rysunek pieca łukowego | Łuk elektryczny wytworzony między trzema elektrodami pionowymi a wsadem metalowym wytwarza energię cieplną, która bezpośrednio ogrzewa wsad | Żeliwo wysokojakościowe, staliwa wszelkiego rodzaju |
Piece elektryczne | Tyglowe. Małej (sieciowej) częstotliwości (pięćdziesiąt Hertzów) rdzeniowe | Ideowy rysunek pieca tyglowego małej częstotliwości, rdzeniowego | Indukowana energia elektryczna zamienia się bezpośrednio na ciepło we wsadzie metalowym (ciepło Joule’a) | Żeliwo wysokojakościowe, wszelkie stopy metali nieżelaznych |
Piece elektryczne | Tyglowe. Sieciowej (pięćdziesiąt Hertzów) oraz średniej częstotliwości (w zakresie od stu do dziesięciu tysięcy Hertzów) bezrdzeniowe | Ideowy rysunek pieca tyglowego bezrdzeniowego | Energia elektryczna z uzwojenia pierwotnego indukowana do wsadu zamienia się bezpośrednio na ciepło (prądy Foucaulta) | Żeliwo wysokojakościowe, staliwo, wysokojakościowe stopy metali nieżelaznych |
Zakres przygotowywania i regeneracji mas formierskich
Ogólny przebieg przygotowania masy formierskiej przedstawia poniższy rysunek.

Główne operacje i czynności wykonywane przy przygotowaniu mas formierskich:
suszenie – ma ułatwić mieszanie surowców tworzących masę i jest niezbędne w celu regulowania zawartości wody do poziomu odpowiadającego optymalnym właściwościom technologicznym,
przesiewanie wstępne – ma na celu usunięcie żwiru, kamieni i ciał obcych zanieczyszczających piaski i gliny formierskie,
rozdrobnienie – ma doprowadzić do zgniecenia zbrylonych materiałów,
przesiewanie wtórne – pozwala uzyskać materiały o odpowiedniej ziarnistości.
Urządzenia stosowane do przygotowania i regeneracji mas formierskich:
suszarki (poziome stałe, poziome obrotowe – bębnowe, pionowe talerzowe i fluidyzacyjne) – służą do suszenia świeżych piasków formierskich i masy,
przesiewacze (obrotowe, wibracyjne i wahadłowe) – używane do piasków świeżych lub masy,
oddzielacze (elektromagnetyczne oraz fluidalne) – służą do oddzielania z masy zanieczyszczeń metalowych,
kruszarki (szczękowe, walcowe, młotkowe, pneumatyczne, młyny kulowe oraz gniotowniki krążnikowe) – używane do rozdrabniania piasków i mas formierskich,
mieszarki (łopatkowe i krążnikowe) – pełnią bardzo ważną funkcję w procesie wytwarzania mas formierskich i rdzeniowych, ponieważ służą do ich ujednorodnienia i w ten sposób wpływają na właściwości technologiczne mas,
spulchniarki (wirnikowe, taśmowe i bębnowe) – służą do ujednorodnienia konsystencji przygotowywanej masy oraz do rozluźnienia jej cząstek.
Powrót do spisu treściPowrót do spisu treści
Powiązane materiały multimedialne
Film edukacyjny: Przegląd metod wytwarzania odlewówPrzegląd metod wytwarzania odlewów
Animacja 3D: Proces zalewania formy, krzepnięcia i stygnięcia stopu odlewniczego w formieProces zalewania formy, krzepnięcia i stygnięcia stopu odlewniczego w formie
Film instruktażowy: Przedstawienie działów zakładu odlewniczegoPrzedstawienie działów zakładu odlewniczego